Valeriushof 33-B

€ 295.000 k.k. |

Verkocht onder voorbehoud |

6215 GC

Maastricht

Kenmerken

Status

Verkocht onder voorbehoud

Vraagprijs

€ 295.000 k.k.

Aanvaarding

In overleg

Soort Woonhuis

Bovenwoning

Soort Bouw

Bestaande bouw

Bouwjaar

1980

Soort Dak

Zadeldak

Energielabel

B

Beschrijving

Zeer ruime bovenwoning met 3 (mogelijk 4) slaapkamers en een parkeerplaats in de lager gelegen parkeergarage.
Gelegen aan een rustig, kindvriendelijk woonerf met vrij uitzicht aan de achterzijde.
De woning is grotendeels v.v. kunststof kozijnen met isolerende beglazing.

Op loopafstand (2 minuten) van winkelcentrum Daalhof met diverse voorzieningen en bushaltes.
Rechtstreekse busverbindingen naar de binnenstad en het MUMC+.

Indeling

Souterrain
In de lagergelegen parkeergarage is een privé parkeerplaats aanwezig.
Deze biedt toegang via de poort van de Romeinsebaan of via de trappen en poorten van en aan de Valeriushof.

Begane grond
Fietsenberging (7m²)

Media

Plattegronden

Video

Documenten

Informatie aanvragen

Kenmerken

  • Aanvaarding In overleg
  • Woonoppervlakte 131 m2
  • Inhoud 431 m3
  • Voorzieningen Mechanische ventilatie, Rolluiken, Tv kabel, Dakraam, Natuurlijke ventilatie
  • Bouwjaar 1980
  • Dak Pannen
  • Soort bouw Bestaande bouw
  • Energieklasse B
  • Energiedatum 2036-02-23
  • Verwarming Cv ketel
  • Warm water Cv ketel
  • CV combiketel 1
  • CV bouwjaar 2012
  • CV brandstof Gas
  • CV eigendom Huur
  • CV type Hesi comfort
  • Soort appartement Bovenwoning
  • Aantal verdiepingen 4
  • Slaapkamers 4
  • Aantal kamers 6
  • Aantal badkamers 1
  • Type buitenruimte(s) Geen tuin
  • Aantal schuren of bergingen 1
  • Daktype Zadeldak
  • Garage breedte 2.42 meter
  • Garage isolatie Geen isolatie
  • Garage lengte 4.54 meter
  • Garage oppervlakte 11 m2
  • Garage soorten Parkeerkelder, Parkeerplaats
  • Oppervlakte externe bergruimte 16
  • Oppervlakte gebouwgebonden buitenruimte 17
  • Parkeerfaciliteiten Openbaar parkeren
  • Schuur/berging isolatie Geen isolatie
  • Schuur/berging soort Aangebouwd steen
  • Schuur/berging voorzieingen Voorzien van elektra

Beschrijving

Zeer ruime bovenwoning met 3 (mogelijk 4) slaapkamers en een parkeerplaats in de lager gelegen parkeergarage.
Gelegen aan een rustig, kindvriendelijk woonerf met vrij uitzicht aan de achterzijde.
De woning is grotendeels v.v. kunststof kozijnen met isolerende beglazing.

Op loopafstand (2 minuten) van winkelcentrum Daalhof met diverse voorzieningen en bushaltes.
Rechtstreekse busverbindingen naar de binnenstad en het MUMC+.

Indeling

Souterrain
In de lagergelegen parkeergarage is een privé parkeerplaats aanwezig.
Deze biedt toegang via de poort van de Romeinsebaan of via de trappen en poorten van en aan de Valeriushof.

Begane grond
Fietsenberging (7m²)
Via de gezamenlijke trap met de buren is de entree van de woning te bereiken.
De woning beschikt over een eigen parkeerplaats in de afgesloten parkeergarage in het souterrain.

Woonniveau (Eerste verdieping)
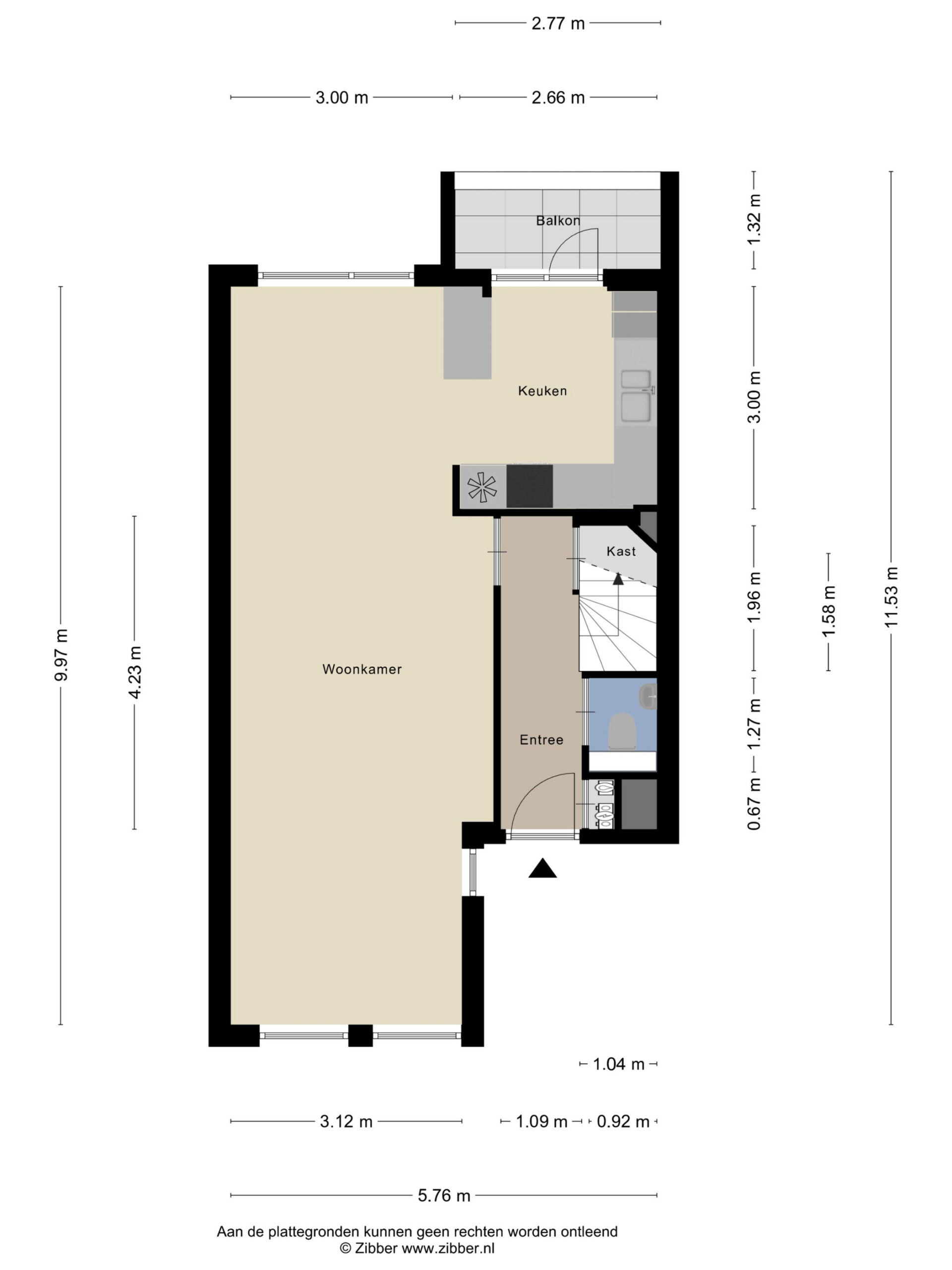
De entree (4,5m²) is v.v. een laminaatvloer en geeft toegang tot de woonkamer, trapbergkast, toilet en meterkast (11 moderne groepen en dubbele tariefmeter).
Het toilet (1,3m²) is volledig betegeld en v.v. een inbouw closet, fonteintje en mechanische ventilatie.
De L-vormige doorzonwoonkamer (36m²) is v.v. een nette laminaatvloer.
De open en in hoogglans uitgevoerde keuken (8,3m²) beschikt over een marmeren vloer en is geplaatst in hoekopstelling. De hooglans keuken met separaat gelegen barista barretje is v.v. een 4-pits keramische kookplaat,
hete lucht oven (AEG), afzuigkap, vaatwasser, spoelbak, koelkast met vriesvak (Liebherr).
Via de keuken heeft u toegang tot het balkon (3m²) aan de achterzijde (zuidoost).

Tweede verdieping
Via de overloop (5,2m²) met laminaatvloer heeft u toegang tot alle vertrekken op deze verdieping.
Alle kamers zijn v.v. een keurige, doorgelegde laminaatvloer en de wanden zijn netjes afgewerkt.
Slaapkamer 1 (13,4m²), gelegen aan de achterzijde van de woning.
Slaapkamer 2 (7,3m²), eveneens gelegen aan de achterzijde.
Slaapkamer 3 (9,8m²), gelegen aan de voorzijde met toegang tot het balkon.
Het deels overdekte balkon is aan de voorzijde gelegen (noordwest) en is ruim van opzet (14,8m²).
De badkamer (5,5m²) is v.v. een ruime douche, tweede toilet en wastafelmeubel met dubbele wastafel.

Derde verdieping
Middels een afgesloten vaste trap is de zeer ruime zolderetage te bereiken.
De waskamer (8,8m²) is v.v. een wasmachineaansluiting; hier bevindt zich tevens de combiketel (Hesi, € 40,79,- p/m).
Slaapkamer 4 (vloeroppervlakte 34m²) beschikt over een dakraam; de vloer is v.v. linoleum vloerbedekking.
Slaapkamer 4 is momenteel in gebruik als sportkamer.

Bijzonderheden

– Verrassend ruime en speels ingedeelde bovenwoning, gelegen aan een verkeersluwe straat.
– De woning is centraal gelegen nabij diverse basisscholen, winkelcentra, openbaar vervoer en wandelgebied.
– Eigen parkeerplaats in het souterrain.
– Energielabel B, geldig tot 23-02-2036.
– Bijdrage VvE: € 126,83- per maand (incl. opstalverzekering en groot onderhoud).
– Ideaal voor de starter die ruimte wil hebben.
– Bij aankoop beschikt u over een woning met drie verdiepingen en voldoende bergruimte.

In de gemeente Maastricht geldt vanaf 1 oktober 2022 een Huisvestingsverordening – opkoopbescherming voor woningen met een WOZ-waarde tot € 402.000 (peildatum 1 januari 2025). Zie ook:
[https://www.gemeentemaastricht.nl/wonen-en-verhuizen/opkoopbescherming-voor-woningen]

Ter bescherming van de belangen van zowel koper als verkoper wordt uitdrukkelijk gesteld dat een koopovereenkomst met betrekking tot deze onroerende zaak eerst tot stand komt nadat koper en verkoper de koopovereenkomst hebben ondertekend (“schriftelijkheidsvereiste”).

De termijn voor eventuele (overeengekomen) ontbindende voorwaarden (bijv. financiering) bedraagt in de regel 4 tot 6 weken na het sluiten van de mondelinge wilsovereenkomst.

De waarborgsom/bankgarantie bedraagt 10% van de koopsom. De koper dient deze binnen 3 dagen na het vervallen van de ontbindende voorwaarden bij de desbetreffende notaris te deponeren.

Koper is te allen tijde gerechtigd voor eigen rekening een bouwkundige keuring te (laten) verrichten dan wel andere adviseurs te raadplegen teneinde een goed inzicht te verkrijgen in de staat van onderhoud.

Deze informatie is met zorg samengesteld. Mochten er onvolkomenheden in voorkomen, dan kunnen hieraan geen rechten worden ontleend. Alle rechten voorbehouden.