Termileslaan 174

Verkocht |

6229 VZ

Maastricht

Kenmerken

Status

Verkocht

Aanvaarding

In overleg

Soort Bouw

Bestaande bouw

Bouwjaar

1964

Soort Dak

Zadeldak

Energielabel

A

Beschrijving

GELET OP HET GROTE ANIMO, IS HET NIET MEER MOGELIJK OM EEN BEZICHTIGING TE PLANNEN. U KUNT UW INTERESSE KENBAAR MAKEN DOOR HET STUREN VAN EEN MAIL. WIJ PLAATSEN UW AANVRAAG DAN OP EEN RESERVE-LIJST.

Instapklare twee-onder-een-kapwoning met royale aanbouw en multifunctionele praktijkruimte – gelegen in het hart van Heugem!

Welkom in deze verrassend ruime en volledig verduurzaamde twee-onder-een-kapwoning, perfect gelegen in de geliefde wijk Heugem. Deze instapklare woning is recent gemoderniseerd en beschikt over een royale aanbouw én een grote, multifunctionele praktijkruimte met eigen entree. Ideaal als praktijk aan huis, kantoorruimte of comfortabel gastenverblijf – de mogelijkheden zijn eindeloos!

Media

Plattegronden

Video

Documenten

Informatie aanvragen

Kenmerken

  • Aanvaarding In overleg
  • Woonoppervlakte 161 m2
  • Overige inpandige ruimte 19 m2
  • Perceeloppervlakte 342 m2
  • Inhoud 639 m3
  • Voorzieningen Mechanische ventilatie, Rolluiken, Buitenzonwering, Airconditioning, Zonnepanelen
  • Bouwjaar 1964
  • Dak Pannen
  • Soort bouw Bestaande bouw
  • Energieklasse A
  • Energiedatum 2035-03-17
  • Isolatie Dakisolatie, Muurisolatie, Vloerisolatie, Volledig geisoleerd, Hr glas
  • Verwarming Cv ketel
  • Warm water Cv ketel
  • CV combiketel 1
  • CV bouwjaar 2015
  • CV brandstof Gas
  • CV eigendom Eigendom
  • CV type Remeha calenta
  • Type Twee onder een kapwoning
  • Soort woonhuis Eengezinswoning
  • Aantal verdiepingen 4
  • Slaapkamers 4
  • Aantal kamers 8
  • Aantal badkamers 1
  • Type buitenruimte(s) Achtertuin, Voortuin
  • Hoofdtuin locatie West
  • Hoofdtuin breedte 10 meter
  • Hoofdtuin lengte 9 meter
  • Hoofdtuin oppervlakte 90 m2
  • Daktype Zadeldak
  • Garage breedte 3.09 meter
  • Garage capaciteit 1
  • Garage isolatie Dakisolatie, Muurisolatie, Vloerisolatie
  • Garage lengte 2.93 meter
  • Garage oppervlakte 9 m2
  • Garage soorten Aangebouwd steen
  • Garage voorzieningen Verwarming, Elektra, Water, Elektrische deur
  • Hoofdtuin type Achtertuin
  • Parkeerfaciliteiten Openbaar parkeren, Op eigen terrein
  • Aantal garages 1
  • Oppervlakte tuin 180 m2
  • Tuin kwaliteit Fraai aangelegd

Beschrijving

GELET OP HET GROTE ANIMO, IS HET NIET MEER MOGELIJK OM EEN BEZICHTIGING TE PLANNEN. U KUNT UW INTERESSE KENBAAR MAKEN DOOR HET STUREN VAN EEN MAIL. WIJ PLAATSEN UW AANVRAAG DAN OP EEN RESERVE-LIJST.

Instapklare twee-onder-een-kapwoning met royale aanbouw en multifunctionele praktijkruimte – gelegen in het hart van Heugem!

Welkom in deze verrassend ruime en volledig verduurzaamde twee-onder-een-kapwoning, perfect gelegen in de geliefde wijk Heugem. Deze instapklare woning is recent gemoderniseerd en beschikt over een royale aanbouw én een grote, multifunctionele praktijkruimte met eigen entree. Ideaal als praktijk aan huis, kantoorruimte of comfortabel gastenverblijf – de mogelijkheden zijn eindeloos!

Op loopafstand vind je alle dagelijkse voorzieningen zoals winkels, basisschool, groenvoorzieningen én het MUMC+. Kortom: een ideale gezinswoning met ruimte voor werk, wonen én ontspanning op een toplocatie.

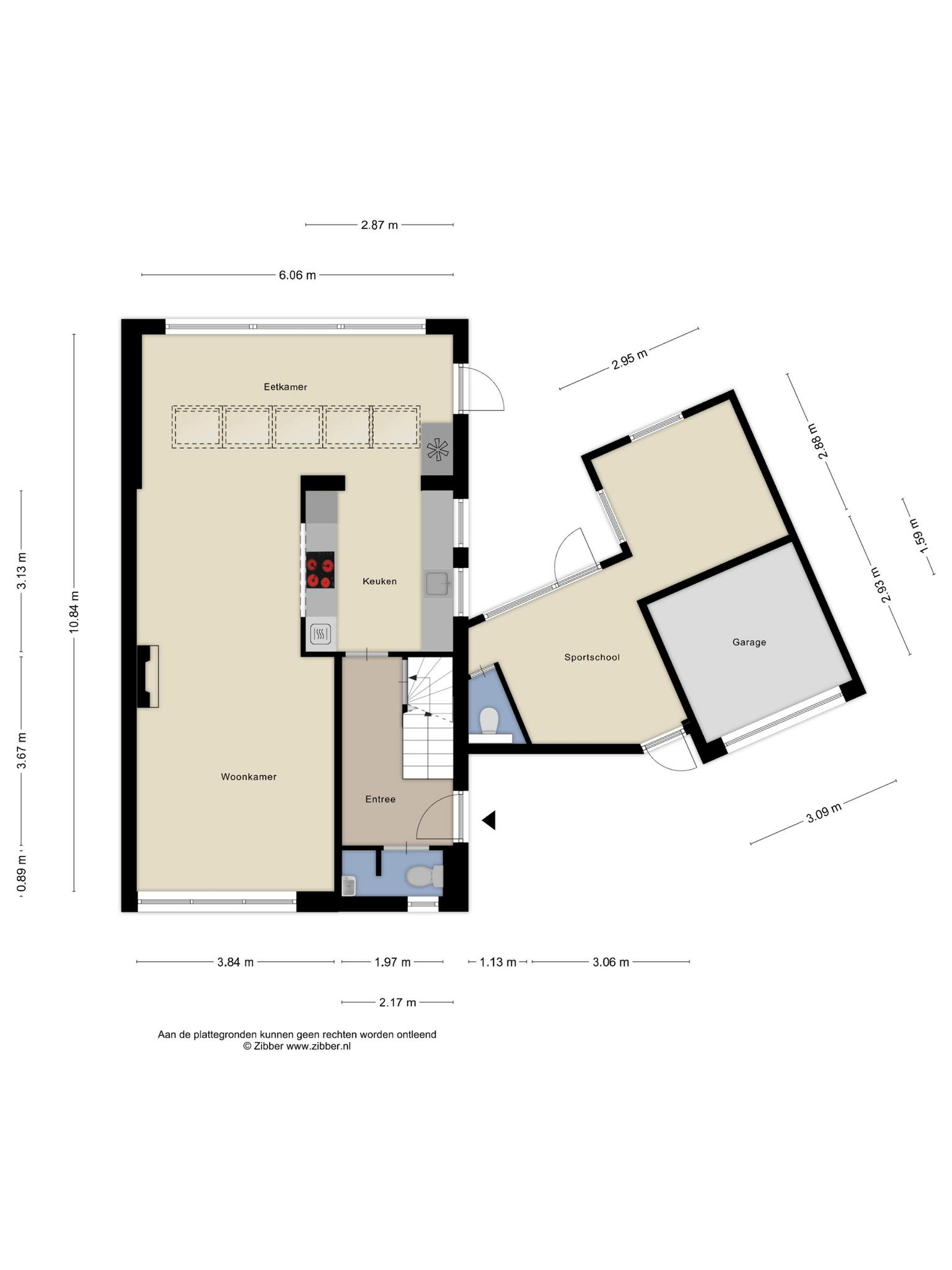
Indeling

Souterrain
Proviandkelder (10m2)

Begane grond
Middels de smaakvolle voordeur kom je in de ruime L-vormige entree.
Gemoderniseerd toilet met zwevend toilet en fonteintje.
Open keuken (9m2) is recent voorzien van nieuwe fronten, composiet werkblad en alle gemakken: inductiekookplaat, koelkast, vaatwasser, oven. De “Boretti” wijnklimaatkast maakt het plaatje af!
De zeer ruime L-vormige living (meer dan 50m2) heeft optimaal lichtinval door de lichtstraat in de aanbouw en raampartijen over de volle breedte van de woning. De ramen beschikking over elektrische sunscreens
Ook is er een moderne gashaard geplaatst..

Via een loopdeur is de achtertuin te bereiken.
De tuin is gesitueerd op het westen en is smaakvol aangelegd met moderne bestrating, vijver en graspartij.

Aan de woning is de multifunctionele ruimte gelegen.
De praktijkruimte (ca 9m2) is bereikbaar vanuit de oprit en achtertuin middels loopdeuren. Er is een toilet aanwezig.
Praktijkruimte 2 (9m2) doet momenteel dienst als sportruimte. Hier is een airconditioning unit geplaatst.
De ruimtes kunnen uitstekend dienst doen als gastenverblijf, kantoor aan huis, praktijk aan huis!

De voormalige garage is nu opgedeeld in sportruimte en fietsenberging met elektrische sectionaalpoort.
De berging is nu 9m2. Indien u een volledige garage wilt, kan dit op eenvoudige wijze weer gerealiseerd worden door verwijderen van de scheidingsmuur tussen de berging en sportruimte.

Eerste verdieping
Overloop met airconditioning.
Slaapkamer 1 (gelegen aan de voorzijde, 15 m2) met inbouw muurkast en rolluiken.
Slaapkamer 2 (gelegen aan de achterzijde, 12m2) met inbouwkasten en rolluiken.
Slaapkamer 3 (8m2) doet momenteel dienst als kleedkamer.
Moderne badkamer (5,3m2) met douche, ligbad, zwevend toilet en dubbel wasmeubel. Er is een elektrische handdoekradiator aanwezig.

Tweede verdieping
Bereikbaar middels een vaste trap.
Voorportaal met stookruimte (CV-combiketel Remeha Calenta, installatie 2015, eigendom).
Royale zolderkamer (21m2) met groot dakkapel. Hier is de wasmachine- en drogeraansluiting gesitueerd.

Bijzonderheden
– Zeer royale en instapklare woning met praktijkruimte aan huis.
– Rustig maar centraal gelegen in de wijk Heugem.
– De woning beschikt over een definitief energielabel A.
– De spouwmuur en vloer zijn nageïsoleerd, 12 zonnepanelen aanwezig en volledig v.v. isolerende beglazing.
– De plafonds op de verdieping zijn afgewerkt met spanplafonds en inbouwverlichting.
– Transport is in overleg.

Ter bescherming van de belangen van zowel koper als verkoper, wordt uitdrukkelijk gesteld dat een koopovereenkomst met betrekking tot deze onroerende zaak eerst dan tot stand komt nadat koper en verkoper de koopovereenkomst hebben getekend (“schriftelijkheidsvereiste”).

De termijn die wordt opgenomen voor eventuele (overeengekomen) ontbindende voorwaarden (bv. Financiering)
is in de regel 4 tot 6 weken na het sluiten van de mondelinge wilsovereenkomst.

De waarborgsom/bankgarantie is 10% van de koopsom. De koper dient deze 3 dagen ná het vervallen
van de ontbindende voorwaarden bij de desbetreffende notaris te deponeren.

Koper is te allen tijde gerechtigd voor eigen rekening een bouwkundige keuring te (laten) verrichten
dan wel andere adviseurs te raadplegen teneinde een goed inzicht te verkrijgen over de staat van onderhoud.

Deze informatie is met zorg samengesteld. Mochten er onvolkomenheden in voorkomen,
kunnen daar geen rechten aan worden ontleend. Alle rechten voorbehouden.