Plantijndomein 18

Verkocht |

6229 GG

Maastricht

Kenmerken

Status

Verkocht

Aanvaarding

In overleg

Soort Bouw

Bestaande bouw

Bouwjaar

1991

Soort Dak

Zadeldak

Energielabel

C

Beschrijving

Zeer rustig gelegen tussenwoning aan een doodlopende straat met garage en drie slaapkamers.
De woning ligt op steenworp afstand van het MUMC+, Vodafone-Ziggo en het MECC.

Tevens op fietsafstand van winkels en op loopafstand van het openbaar vervoer.

Begane grond
Entree (circa 1,4m2m2) v.v. modere meterkast (7 moderne groepen, aardlekschakelaar en een elektrische waterontharder).
Keurige toiletruimte (1m2) halfhoog betegeld en v.v. een zwevend toilet met fonteintje.
Doorzonwoonkamer (circa 32m2) met een nette boeren-eiken vloer, de aanbouw is v.v een schuifpui naar de tuin.
In de bergkast is de cv ketel (Remeha Calenta 2015, huur €

Media

Plattegronden

Video

Documenten

Informatie aanvragen

Kenmerken

  • Aanvaarding In overleg
  • Woonoppervlakte 110 m2
  • Perceeloppervlakte 117 m2
  • Inhoud 392 m3
  • Voorzieningen Rolluiken, Tv kabel, Dakraam, Balansventilatie
  • Bouwjaar 1991
  • Dak Pannen
  • Soort bouw Bestaande bouw
  • Energieklasse C
  • Energiedatum 2030-12-29
  • Verwarming Cv ketel
  • Warm water Cv ketel
  • CV bouwjaar 2015
  • CV eigendom Huur
  • CV type Remeha calenta
  • Type Tussenwoning
  • Soort woonhuis Eengezinswoning
  • Aantal verdiepingen 3
  • Slaapkamers 3
  • Aantal kamers 5
  • Aantal badkamers 1
  • Type buitenruimte(s) Achtertuin
  • Hoofdtuin locatie Zuidoost
  • Hoofdtuin breedte 5.25 meter
  • Hoofdtuin lengte 4.5 meter
  • Hoofdtuin oppervlakte 24 m2
  • Hoofdtuin achterom Ja
  • Aantal schuren of bergingen 1
  • Daktype Zadeldak
  • Garage capaciteit 1
  • Garage isolatie Geen spouw
  • Garage soorten Vrijstaand steen
  • Garage voorzieningen Elektra
  • Hoofdtuin type Achtertuin
  • Oppervlakte externe bergruimte 24
  • Oppervlakte gebouwgebonden buitenruimte 16
  • Parkeerfaciliteiten Betaald parkeren, Parkeervergunningen
  • Schuur/berging isolatie Geen isolatie
  • Schuur/berging soort Vrijstaand steen
  • Schuur/berging voorzieingen Voorzien van elektra
  • Aantal garages 1
  • Oppervlakte tuin 25 m2
  • Tuin kwaliteit Normaal

Beschrijving

Zeer rustig gelegen tussenwoning aan een doodlopende straat met garage en drie slaapkamers.
De woning ligt op steenworp afstand van het MUMC+, Vodafone-Ziggo en het MECC.

Tevens op fietsafstand van winkels en op loopafstand van het openbaar vervoer.

Begane grond
Entree (circa 1,4m2m2) v.v. modere meterkast (7 moderne groepen, aardlekschakelaar en een elektrische waterontharder).
Keurige toiletruimte (1m2) halfhoog betegeld en v.v. een zwevend toilet met fonteintje.
Doorzonwoonkamer (circa 32m2) met een nette boeren-eiken vloer, de aanbouw is v.v een schuifpui naar de tuin.
In de bergkast is de cv ketel (Remeha Calenta 2015, huur € 48,78 p/m – p/m ook op te zeggen) en hier is de WTW installatie geplaatst.
In de woonkamer bevindt zich onder de trap nog een trapbergkast.
De keuken (bouwjaar 2016 ) is geplaatst in de aanbouw (1993/1994) deze is v.v een tegelvloer met vloerverwarming.
De keuken (12,5m2) is in een L–opstelling geplaatst en is v.v. een vaatwasser, 4 zone keramische kookplaat,
en een afzuigkap allen van het merk Ignis.
In het verlaagde plafond zijn twee lichtkoepels geplaatst.

Onder de overkapping (16m2) is een handbediend zonnewering aanwezig ,
De tuin (circa 10m2) welke niet onder de overkapping is gelegen is v.v. bestrating, een groenborder en een achterom.
Er is tevens een stenen berging (5,7m2) aanwezig met stroomvoorziening.
Door de situering op het zuid-westen kunt u heerlijk van de middag en de avondzon genieten.
Via een brandgang aan de achterzijde is de garage te bereiken deze is v.v. een loopdeur aan de achterzijde,
en een handmatig bediende kantelpoort aan de voorzijde.
De afmeting van de garage (18m2) is 254 X 710 cm groot.
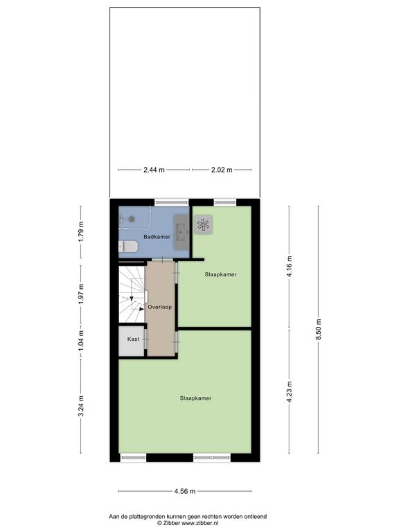
De eerste verdieping is bereikbaar via de “open” trap, dichtgemaakt met een glazen schuifdeur.

Berging
Eerste verdieping
Overloop en trap bekleed met een laminaatvloer van upstaiirs en is circa 2m2 groot .
Op de overloop is tevens een bergkast aanwezig (1m2)
Slaapkamer 1 (17m2) gelegen aan de voorzijde deze kamer is v.v. een tapijttegel en behang op de muren
Slaapkamer 2 (9m2) uitkijkend over de tuinen en de garages aan de achterzijde. De wanden zijn v.v. structuurverf.
De ruimtes zijn afgewerkt net behang en kunststof kozijnen (2002) met HR++ beglazing en handbediende rolluiken.
Recent (2020) gemoderniseerde badkamer (4m2) is v.v. een Inloopdouche, staand toilet met stortbak en een modern wasmeubel. De wandafwerking is deels van plaatmateriaal gemaakt.
Op de vloer is een speelse mozaïek afwerking.

Tweede verdieping
Via de tussenhal is de vaste trap naar de zolder bereikbaar.
Voorportaal (2m2)met een washok (1m2) met aldaar alle witgoedaansluitingen.
De 3e slaapkamer (18 is op de zolder aan de voor en achterzijde gelegen en is v.v 2 nieuwe Velux dakramen met her en verduisterings gordijn
Er is een op maat gemaakte kastenwand aanwezig en in de knieschotten is er voldoende bergruimte aanwezig.
Op de gehele bovenverdieping ligt een keurige laminaatvloer.

Bijzonderheden
– Zeer gunstig gelegen woonhuis.
– De woning is v.v. gevel-, dak- en vloerisolatie en een WtW installatie.
– Bovendien is de woning geheel voorzien van isolerende beglazing en deels met rolluiken.
– Definitief energielabel C.
– De woning beschikt over een privé garage.
– Parkeren in de straat is mogelijk middels parkeervergunning. De kosten bedragen
Circa 55 euro per jaar voor de eerste vergunning circa 75 euro per jaar voor de tweede vergunning.
– VRIJWILLIGE Bijdrage voor de VVe t.b.v. het onderhoud binnenterrein bedraagt € 53,- euro p/j.
– Mogelijke transportdatum mei-juni 2024.

Ter bescherming van de belangen van zowel koper als verkoper, wordt uitdrukkelijk gesteld dat een koopovereenkomst met betrekking tot deze onroerende zaak eerst dan tot stand komt nadat koper en verkoper de koopovereenkomst hebben getekend (“schriftelijkheidsvereiste”).

In de Gemeente Maastricht geldt vanaf 1 oktober 2022 een Huisvestingsverordening – opkoopbescherming voor woningen
met een WOZ-waarde tot 365.000 euro (peildatum 1 januari 2024) zie ook :
(https://www.gemeentemaastricht.nl/wonen-en-verhuizen/opkoopbescherming-voor-woningen).

De termijn die wordt opgenomen voor eventuele (overeengekomen) ontbindende voorwaarden (bv. Financiering)
is in de regel 4 tot 6 weken na het sluiten van de mondelinge wilsovereenkomst.

De waarborgsom/bankgarantie is 10% van de koopsom. De koper dient deze 3 dagen ná het vervallen
van de ontbindende voorwaarden bij de desbetreffende notaris te deponeren.

Koper is te allen tijde gerechtigd voor eigen rekening een bouwkundige keuring te (laten) verrichten
dan wel andere adviseurs te raadplegen teneinde een goed inzicht te verkrijgen over de staat van onderhoud.

Deze informatie is met zorg samengesteld. Mochten er onvolkomenheden in voorkomen,
kunnen daar geen rechten aan worden ontleend. Alle rechten voorbehouden